Accueil > Achats > Appartement > Brest > EXCLUSIVITÉ A VENDRE BREST SIAM EGLISE SAINT-LOUIS APPARTEMENT T5 DUPLEX 143,44 M² PETIT GARAGE

Vente appartement à Brest, 5 pièces 143.44m²

Brest29200 - CENTRE VILLE - SIAM

Réf : SI00365-RS-1

Vente appartement à Brest, 5 pièces 143.44m²

Brest - CENTRE VILLE - SIAM

378 800 € *


Barraine Immo – Agence immobilière à Brest-Siam

35 rue Trav.
29200 Brest

+33 2 49 88 13 73

Etre recontacté

Comparer

Surface 143.44 m²
Pièces 5
Chambres 4

Description

EXCLUSIVITÉ – SIAM – SAINT-LOUIS
SI00365-RS-1

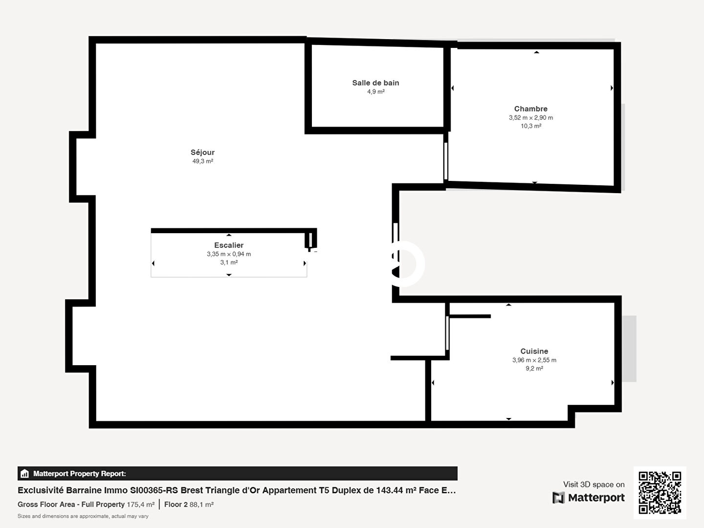
Venez découvrir cet appartement T5 en duplex de 143.44 m² situé dans une résidence bien tenue des années 1950 en plein coeur du Triangle d’Or, à proximité de la Rue de Siam.
Développant 143,44m² habitables, il se compose d’une entrée sur parquet massif donnant sur deux pièces pouvant être réunies et former un ensemble pièce de vie de 34m², une cuisine de 8,5m² donnant sur cour ainsi qu’une chambre de 14m². WC indépendant.
Au niveau supérieur, vous trouverez 4 pièces supplémentaires, allant de 9 à 17,5m², un placard, WC avec lave-mains et un large dégagement.

Pour votre véhicule ou/et du stockage, vous pourrez également profiter d’un petit garage dans la cour de l’immeuble ainsi que de deux caves au sous-sol de 13 et 18 m².

Cet ensemble nécessitera d’être refait et pourra également être divisé en 2 logements indépendants. Le système de chauffage est individuel au fioul et les fenêtres sont en PVC double vitrage.

Les indices DPE et GES sont respectivement de catégorie E (191 kWh/m² annuels) et de classe E (50Kg CO2/m²/an).

N’hésitez pas à prendre contact avec votre Agence Barraine IMMO Brest – Siam pour une première visite de cet appartement à vendre. (5.22 % honoraires TTC à la charge de l’acquéreur.)
Copropriété de 12 lots – dont 3 lots habitation. (Pas de procédure en cours).

Charges annuelles : 1751.2 euros.

Risque sismique ou radon

Les informations sur les risques auxquels ce bien est exposé sont disponibles sur le site Géorisques.

* 378 800 € honoraires inclus dont à la charge de l'acquéreur : 18 800 € - Prix hors honoraires : 360 000 €.

Caractéristiques

Aspects financier

Prix 378 800 €

Surface

Surface143.44 m²
Surface séjour49 m²

Intérieur

Nombre de pièces5
Chambres4
WC2
Cuisine Independante
Exposition séjourNord - Ouest
Séjour doubleOui
Type chauffage Individuel
Méca. chauffage Radiateur
Mode. chauffageFuel
Eau chaude Ballon électrique
Etat intérieur A rafraîchir

Extérieur

Couverture Zinc
Etat général non rensigné
Vis à visNon
Etat extérieur Bon
FenêtresPVC Double Vitrage
IsolationAucune

Cuisine

Surface8.5m²
Exposition Sud - Est
Vue Cour
Description PVC double vitrage

Chambre 1

Surface14.79m²
Exposition Sud - Est
Vue Cour
Description PVC double vitrage - parquet

Chambre 2

Surface16.94m²
Exposition Nord - Ouest
Vue Rue
Description

Dégagement

Surface10.5m²
Description parquet massif

W.C.

Surface2.76m²
Description carrelage - lave-mains

Séjour

Surface17.45m²
Exposition Nord - Ouest
Vue Rue
Description parquet - PVC double vitrage

Séjour

Niveau1
Surface17.73m²
Exposition Nord - Ouest
Vue Rue
Description parquet - PVC double vitrage

Chambre 3

Niveau1
Surface11.38m²
Exposition Sud - Est
Vue Cour
Description parquet - PVC

W.C.

Niveau1
Surface1.2m²
Description carrelage

Placard

Niveau1
Surface3.13m²
Description carrelage

Séjour

Niveau1
Surface16.8m²
Description

Dégagement

Niveau1
Surface9.91m²
Description

Dégagement

Niveau1
Surface1.13m²
Description

Dégagement

Niveau1
Surface1.03m²
Description

Cuisine

Niveau1
Surface9m²
Exposition Sud - Est
Vue Cour
Description carrelage
Bien en copropriétéOui
Nb lots copropriété12
Charges annuelles1751.2€
ExpositionEO
Etage1
Nombre étages4

Diagnostics

passoireénergétique consommation(énergie primaire) émissions kg CO2/m².an kWh/m².an 191 50* G Logement extrêmement consommateur d’énergie F E D C B A Logement très performant
émissions de CO2très importantes *Dont émissions de gazà effet de serre peu d’émissions de CO2 G F E D 50 kg CO2/m².an C B A

Localisation

Nous vous proposons une grande gamme de biens en vente ou à la location à Brest :

Retrouvez également notre agence immobilière à Brest.

Estimez vos mensualités

Pour calculer les mensualités de ce bien selon vos propres critères, veuillez renseigner le montant de votre apport et la durée de prêt en années que vous envisagez :

  • ANS
  • %
  • %
  • Prêt :
  • Coût du crédit :
  • Coût de l'assurance :
illustration-accueil

Vous souhaitez vendre une maison, un appartement, un terrain ?

Obtenez une estimation en ligne du prix de votre bien immobilier, c'est gratuit et sans engagement !

Estimer mon bien

Ces biens peuvent aussi vous intéresser

Nos conseils pour votre projet

Investir immobilier près de Lorient : Le guide des communes d’avenir

Investir immobilier près de Lorient : Le guide des communes d’avenir

Investir à Brest : Pourquoi la ville devient-elle un centre immobilier attractif ?

Investir à Brest : Pourquoi la ville devient-elle un centre immobilier attractif ?

L’Immobilier à Brest : Tendances actuelles et perspectives du marché

L’Immobilier à Brest : Tendances actuelles et perspectives du marché

Voir tous nos conseils

Vos témoignages

Haut de page

Comparateur de biens (0/3)

COMPARER
Comparateur de biens (0/3)
Tout supprimer