Accueil > Achats > Appartement > Brest > EXCLUSIVITÉ BREST EUROPE APPARTEMENT T5 88M² 3 CHAMBRES IDÉAL COLOCATION

Vente appartement à Brest, 5 pièces 89.58m²

Brest29200 - EUROPE

Réf : SI00427-DS

Vente appartement à Brest, 5 pièces 89.58m²

Brest - EUROPE

107 000 € *


Barraine Immo – Agence immobilière à Brest-Siam

35 rue Traverse
29200 Brest

+33 2 49 88 13 73

Etre recontacté

Comparer

Surface 89.58 m²
Pièces 5
Chambres 3

Description

EXCLUSIVITÉ – BREST – EUROPE – PONTANEZEN . Réf : SI00427-DS

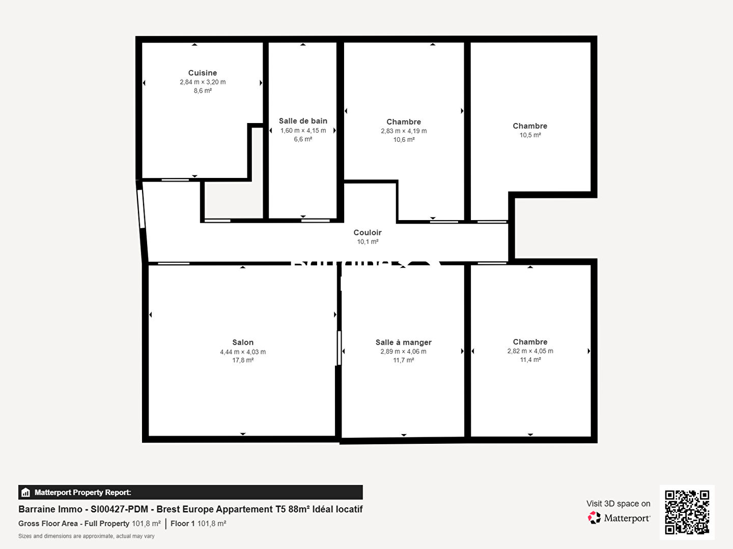
Située dans la ville de BREST (29200), au sein du quartier de l’Europe, venez découvrir cet appartement T5 de 89,58m² habitables.

Il se compose d’une entrée, salon de 20m² s’ouvrant sur une salle à manger pouvant faire office de 4ème chambre, cuisine indépendante, salle d’eau avec fenêtre et 3 chambres. Rangements.

Cet appartement nécessitera des travaux afin de lui donner une seconde jeunesse. Les fenêtres sont en PVC double vitrage.

Il est situé dans une résidence des années 70 en copropriété comprenant 18 lots. Le bâtiment comporte quatre étages.
L’appartement bénéficie d’un système de chauffage collectif au sol.

Pour davantage de rangements, ce logement dispose aussi d’une cave au sous-sol.

Le bien est proche de toutes commodités : il se trouve à 500 mètres des commerces et à quatre minutes des écoles. Il y a un arrêt de bus et le tram à trois minutes de l’appartement.

L’indice DPE est C pour une consommation énergétique à hauteur de 165 kWh/m2/an. L’indice GES est également de catégorie B signifiant un taux faible d’émissions de gaz à effet de serre.

Votre agence vous invite à découvrir toutes les originalités de cet appartement en vente en prenant rendez-vous avec l’un de nos négociateurs immobiliers. (7.00 % honoraires TTC à la charge de l’acquéreur.)
Copropriété de 97 lots – dont 49 lots habitation. (Pas de procédure en cours).

Charges annuelles : 1614.7 euros.

* 107 000 € honoraires inclus dont à la charge de l'acquéreur : 7 000 € - Prix hors honoraires : 100 000 €.

Caractéristiques

Aspects financier

Prix 107 000 €

Surface

Surface89.58 m²

Intérieur

Nombre de pièces5
Chambres3
WC1
Cuisine Independante
Exposition séjourSud
Séjour doubleOui
Type chauffage Collectif
Méca. chauffage Au Sol
Mode. chauffageChauffagedeville
Eau chaude ChauffeEau
Etat intérieur Travaux à prévoir

Extérieur

Couverture Terrasse
Vis à visNon
Etat extérieur Bon
FenêtresPVC Double Vitrage
Isolationisolation par l'extérieur

Entrée

Surface2.54m²
Description

Cuisine

Surface8.6m²
Exposition Nord
Vue Rue
Description PVC double vitrage - chauffe-eau

Salon

Surface15.28m²
Exposition Sud
Vue Espaces verts
Description PVC double vitrage

Salle à manger

Surface10.97m²
Exposition Sud
Vue Espaces verts
Description PVC double vitrage - 4ème chambre

Dégagement

Surface6.51m²
Description

Chambre 1

Surface11.27m²
Exposition Nord
Vue Rue
Description PVC double vitrage

Salle d'eau

Surface6.56m²
Exposition Nord
Vue Rue
Description PVC double vitrage

Chambre 2

Surface11m²
Exposition Nord
Vue Rue
Description PVC double vitrage

Chambre 3

Surface10.39m²
Exposition Sud
Vue Espaces verts
Description PVC double vitrage

Placard

Surface1m²
Description
Bien en copropriétéOui
Nb lots copropriété97
Charges annuelles1614.7€
ExpositionSud
Etage2
Nombre étages4

Diagnostics

consommation(énergie primaire) émissions kg CO2/m².an kWh/m².an 165 10* passoireénergétique G Logement extrêmement consommateur d’énergie F E D C B A Logement très performant
émissions de CO2très importantes *Dont émissions de gazà effet de serre peu d’émissions de CO2 G F E D C B 10 kg CO2/m².an A

Localisation

Estimez vos mensualités

Pour calculer les mensualités de ce bien selon vos propres critères, veuillez renseigner le montant de votre apport et la durée de prêt en années que vous envisagez :

  • ANS
  • %
  • %
  • Prêt :
  • Coût du crédit :
  • Coût de l'assurance :
illustration-accueil

Vous souhaitez vendre une maison, un appartement, un terrain ?

Obtenez une estimation en ligne du prix de votre bien immobilier, c'est gratuit et sans engagement !

Estimer mon bien

Ces biens peuvent aussi vous intéresser

Nos conseils pour votre projet

Les aides à l’achat immobilier à Lorient : ce que vous devez savoir

Les aides à l’achat immobilier à Lorient : ce que vous devez savoir

Les communes entre Brest et Lorient : opportunités pour l’achat ou la vente de maison

Les communes entre Brest et Lorient : opportunités pour l’achat ou la vente de maison

Les quartiers les plus prisés à Lorient : où investir en 2025 ?

Les quartiers les plus prisés à Lorient : où investir en 2025 ?

Voir tous nos conseils

Vos témoignages

Haut de page

Comparateur de biens (0/3)

COMPARER
Comparateur de biens (0/3)
Tout supprimer