Accueil > Achats > Appartement > Brest > BREST FORESTOU – VENTE d’un appartement T4 de 85.10 m² – Ascenseur – Terrasse 14.4 m² – Vue mer – Garage – Parking

Vente appartement à Brest, 4 pièces 85.1m²

Brest29200 - FORESTOU - GUELMEUR

Réf : SI00475-RS

Vente appartement à Brest, 4 pièces 85.1m²

Brest - FORESTOU - GUELMEUR

274 000 € *


Barraine Immo – Agence immobilière à Brest-Siam

35 rue Trav.
29200 Brest

+33 2 49 88 13 73

Etre recontacté

Comparer

Surface 85.1 m²
Pièces 4
Chambres 2

Description

BREST FORESTOU – VENTE d’un appartement T4 de 85.10 m² – Ascenseur – Terrasse 14.4 m² – Vue mer – Garage – Parking
APPARTEMENT 4 PIÈCES de 85.10 m² AU CALME
Ref SI00475-RS
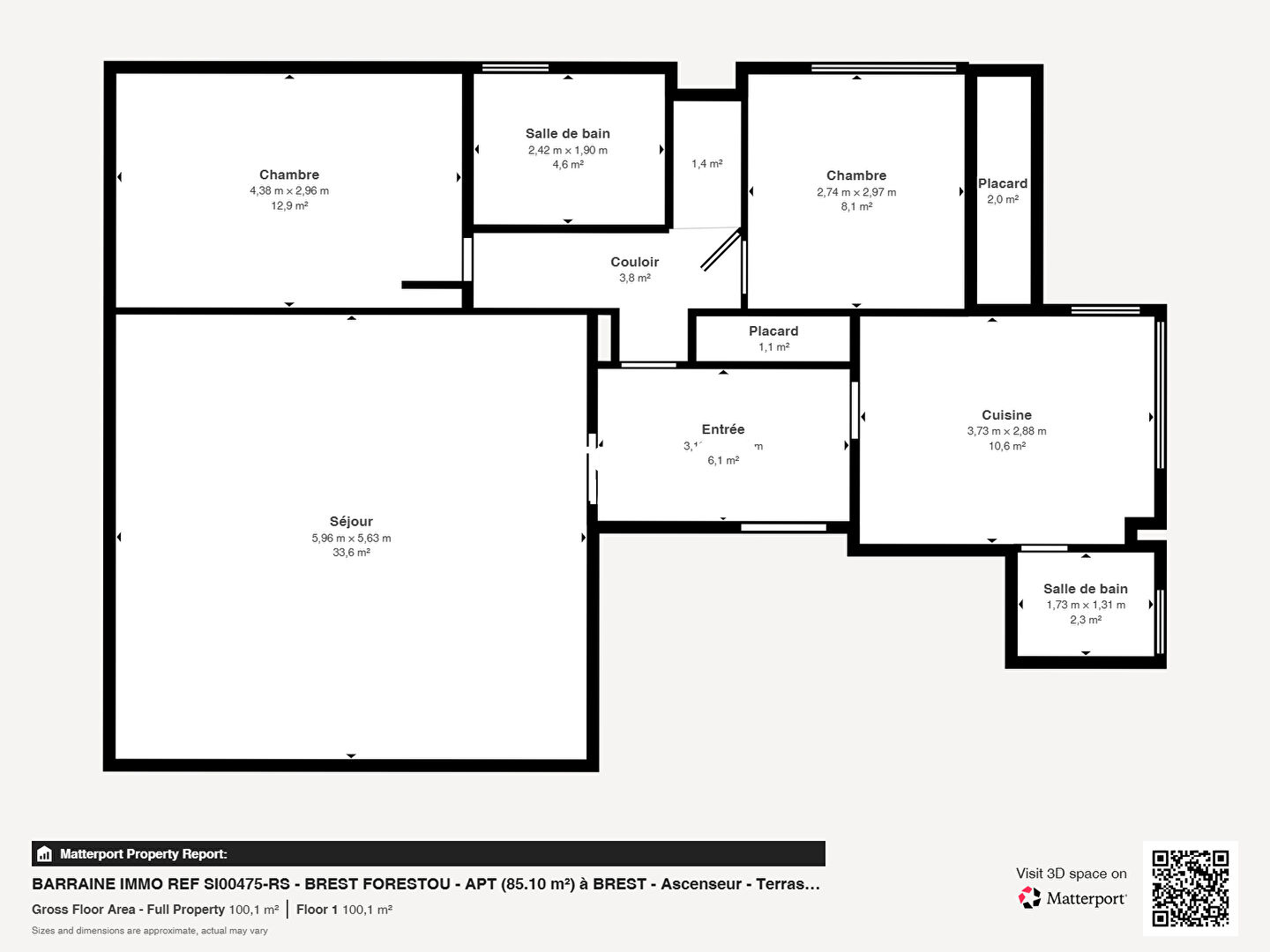
Proche du centre dans un secteur résidentiel, nous sommes heureux de vous présenter à vendre à BREST (29200), cet appartement de 4 pièces au calme exposé sud, de 85.10 m². Il s’agence comme suit : un hall avec placard et un vaste séjour double de 32 m². Son intérieur dispose également de deux chambres de 9 m² et 12 m², d’une cuisine aménagée équipée et d’une arrière cuisine pour votre buanderie. Il inclut une salle d’eau avec douche et fenêtre. Toilettes séparées. Volets roulants, des fenêtres en aluminium double vitrage et la fibre dans l’immeuble.

Cet appartement comporte une terrasse de 14 m². Pour une solution de rangement complémentaire, l’appartement bénéficie d’une cave de 4.2 m².

Avec ascenseur, Le bâtiment a été construit en 2006. Il est en très bon état général malgré un extérieur attendant d’être rafraîchi. Tout est prévu pour votre véhicule : parmi les emplacements disponibles dans l’immeuble, un garage au sous-sol, une place de parking extérieure sont réservés pour cet appartement. La sécurité du bâtiment est assurée par un vigik et un interphone avec visiophone.

Dans un quartier calme, cet appartement est proche de toutes commodités : l’appartement se trouve à moins d’une minute des commerces et à deux minutes des écoles. Pour les tout-petits, les environs proposent deux crèches à moins de 10 minutes à pied. Un arrêt de bus se trouve à trois minutes du bien. Il y a également le tram à 10 minutes. L’aéroport Brest-Bretagne est accessible à 8 km. Pour vos loisirs, vous pourrez compter sur deux cinémas tout comme sur un tennis à proximité du logement. On trouve aussi des restaurants, des commerces, quatre boulangeries, trois supermarchés, des épiceries et un bureau de poste.

Si vous souhaitez acheter, il est important de prendre en considération le bilan énergétique du bien. La classe énergétique est notée C pour une consommation énergétique de 135 kWh/m2/an. La classe climatique est, quant à elle, notée A, ce qui représente de très faibles émissions de gaz à effet de serre (de l’ordre de 5 Kg CO2/m²/an). Le montant des dépenses annuelles d’énergie pour un usage standard est estimé entre 1180 euros et 1610 euros.

Les informations sur les risques auxquels ce bien est exposé sont disponibles sur le site Géorisques : www.georisques.gouv.fr.

Profitez de la visite virtuelle de cet appartement pour le découvrir comme si vous y étiez. Contactez notre agence immobilière Agence Barraine IMMO Brest – Siam pour obtenir plus de renseignements sur cet appartement en vente à BREST. (5.38 % honoraires TTC à la charge de l’acquéreur.)
Copropriété de 144 lots – dont 48 lots habitation. (Pas de procédure en cours).

Charges annuelles : 1874.84 euros.

Risque sismique ou radon

Les informations sur les risques auxquels ce bien est exposé sont disponibles sur le site Géorisques.

* 274 000 € honoraires inclus dont à la charge de l'acquéreur : 14 000 € - Prix hors honoraires : 260 000 €.

Caractéristiques

Aspects financier

Prix 274 000 €

Surface

Surface85.1 m²
Surface séjour32.1 m²

Intérieur

Nombre de pièces4
Chambres2
WC1
Cuisine AmenageeEquipee
Exposition séjourSud
Séjour doubleOui
Type chauffage Individuel
Méca. chauffage Radians
Mode. chauffageElectrique
Eau chaude Ballon électrique
Etat intérieur A rafraîchir
CalmeOui
ClairOui

Extérieur

Couverture Terrasse
Etat général d'origine
Vis à visNon
Etat extérieur Travaux à prévoir
FenêtresAluminium Double Vitrage
IsolationOui

Hall d'entrée

Niveau1
Surface5.95m²
Description Carrelage - Porte sécurisée

Séjour

Niveau1
Surface32.1m²
Exposition Sud
Vue Vue mer
Description Carrelage 2006 - Baies aluminium

Cuisine

Niveau1
Surface10.8m²
Exposition Nord
Vue Vue Dégagée
Description Carrelage - Fenêtre double vitrage

Arrière cuisine

Niveau1
Surface2.86m²
Vue Vue Dégagée
Description Carrelage - Fenêtre double vitrage

Chambre 1

Niveau1
Surface12.57m²
Exposition Sud
Vue Vue mer
Description Lino - Fenêtre double vitrage

Chambre 2

Niveau1
Surface10m²
Exposition Ouest
Vue Vue Dégagée
Description Lino - Fenêtre double vitrage - placard de 2 m²

Salle d'eau

Niveau1
Surface4.55m²
Exposition Ouest
Vue Vue Dégagée
Description Carrelage - Fenêtre double vitrage

W.C.

Niveau1
Surface1.35m²
Description Carrelage

Dégagement

Niveau1
Surface3.82m²
Description Carrelage

Placard

Niveau1
Surface1.1m²
Description Carrelage

Balcon

Niveau1
Surface14.4m²
Vue Vue mer
Description béton
Bien en copropriétéOui
Nb lots copropriété144
Charges annuelles1874.84€
ExpositionSud
Etage1
Nombre étages3

Diagnostics

consommation(énergie primaire) émissions kg CO2/m².an kWh/m².an 135 5* passoireénergétique G Logement extrêmement consommateur d’énergie F E D C B A Logement très performant
émissions de CO2très importantes *Dont émissions de gazà effet de serre peu d’émissions de CO2 G F E D C B A 5 kg CO2/m².an

Localisation

Nous vous proposons une grande gamme de biens en vente ou à la location à Brest :

Retrouvez également notre agence immobilière à Brest.

Estimez vos mensualités

Pour calculer les mensualités de ce bien selon vos propres critères, veuillez renseigner le montant de votre apport et la durée de prêt en années que vous envisagez :

  • ANS
  • %
  • %
  • Prêt :
  • Coût du crédit :
  • Coût de l'assurance :
illustration-accueil

Vous souhaitez vendre une maison, un appartement, un terrain ?

Obtenez une estimation en ligne du prix de votre bien immobilier, c'est gratuit et sans engagement !

Estimer mon bien

Ces biens peuvent aussi vous intéresser

Nos conseils pour votre projet

Loi de finances 2026 : ce que change la fiscalité pour vos investissements immobiliers

Loi de finances 2026 : ce que change la fiscalité pour vos investissements immobiliers

Comment un promoteur conçoit des programmes durables : du plan à la vie de quartier

Comment un promoteur conçoit des programmes durables : du plan à la vie de quartier

Brest 2026 : Investir dans les quartiers prisés, notre guide expert

Brest 2026 : Investir dans les quartiers prisés, notre guide expert

Voir tous nos conseils

Vos témoignages

Haut de page

Comparateur de biens (0/3)

COMPARER
Comparateur de biens (0/3)
Tout supprimer