Accueil > Achats > Corps de ferme > Argol > À vendre : Ancien Corps de ferme à ARGOL proche de la mer – Opportunité rare !

Vente corps de ferme à Argol, 6 pièces 112m²

Argol29560 - Proche Mer

Réf : PC00518-ALM

Vente corps de ferme à Argol, 6 pièces 112m²

Argol - Proche Mer

349 500 € *


Barraine Immo – Agence immobilière à Brest-Siam

35 rue Trav.
29200 Brest

+33 2 49 88 13 73

Etre recontacté

Comparer

Surface 112 m²
Terrain 4600 m²
Pièces 6
Chambres 5

Description

A vendre : Ancien corps de ferme à ARGOL, proche de la mer Opportunité rare !
Référence PC00518-ALM

Découvrez cet ancien corps de ferme situé à ARGOL, à seulement 650 mètres de la mer, offrant un cadre de vie privilégié dans un environnement calme et verdoyant.

Implantée sur plus de 4 000 m² de terrain, cette propriété présente un fort potentiel pour les amateurs de projets et de grands espaces.
Vous y trouverez une maison construite en 2015, un hangar viabilisé, ainsi qu’une dépendance à rénover.

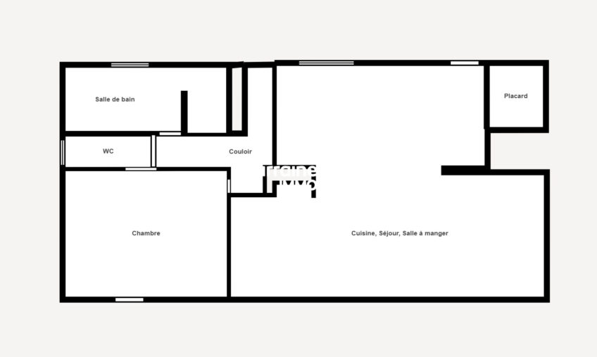
La maison se compose d’une cuisine aménagée et équipée, d’un séjour / salle à manger exposé ouest, agrémenté d’un insert, idéal pour profiter de belles fins de journée.
Le rez-de-chaussée comprend également une chambre et une salle de bains avec douche et baignoire.
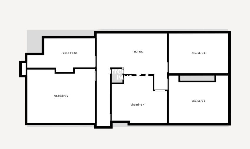
A l’étage, vous disposerez de quatre chambres supplémentaires ainsi que d’un espace bureau.

A l’extérieur, une dépendance d’environ 40 m², à rénover, offre de multiples possibilités : atelier, espace de stockage ou projet locatif (estimatif travaux sur demande).
Le terrain est en bon état et la fibre optique est disponible, garantissant un confort de connexion optimal.

En complément, un terrain de pâturage est disponible en sus, idéal pour accueillir chevaux ou autres animaux, parfait pour les amoureux de la nature et des projets équestres ou agricoles.

Ne manquez pas cette opportunité rare à proximité immédiate de la mer.
Contactez Barraine IMMO Crozon pour plus d’informations. (4.33 % honoraires TTC à la charge de l’acquéreur.)

Risque sismique ou radon

Les informations sur les risques auxquels ce bien est exposé sont disponibles sur le site Géorisques.

* 349 500 € honoraires inclus dont à la charge de l'acquéreur : 14 500 € - Prix hors honoraires : 335 000 €.

Caractéristiques

Aspects financier

Prix 349 500 €

Surface

Surface112 m²
Surface terrain4600 m²

Intérieur

Nombre de pièces6
Chambres5
Chambre RDCOui
Salle(s) de bain1
WC2
Cuisine AmenageeEquipee
Exposition séjourOuest
Type chauffage Individuel
Méca. chauffage Radiateur
Mode. chauffageBois_Electrique
Eau chaude Ballon électrique
Etat intérieur A rafraîchir

Extérieur

Couverture Ardoises
Etat général BE
Vis à visNon
Etat extérieur A_Renover
FenêtresPVC Double Vitrage

Cuisine - Salle à manger

Surface40m²
Exposition Ouest
Description

Chambre

Surface14.5m²
Description

Dégagement

Surface5m²
Description

Salle de bains

Surface7m²
Description

Placard

Surface2.3m²
Description

Chambre 2

Niveau1
Surface14m²
Exposition Ouest
Description

Chambre 3

Niveau1
Surface10.6m²
Exposition Ouest
Description

Bureau

Niveau1
Surface15m²
Exposition Est
Description

Chambre 4

Niveau1
Surface9.2m²
Exposition Ouest
Description

Chambre 5

Niveau1
Surface9.8m²
Exposition Est
Description
ExpositionSud-ouest

Diagnostics

consommation(énergie primaire) émissions kg CO2/m².an kWh/m².an 151.4 5* passoireénergétique G Logement extrêmement consommateur d’énergie F E D C B A Logement très performant
émissions de CO2très importantes *Dont émissions de gazà effet de serre peu d’émissions de CO2 G F E D C B A 5 kg CO2/m².an

Localisation

Estimez vos mensualités

Pour calculer les mensualités de ce bien selon vos propres critères, veuillez renseigner le montant de votre apport et la durée de prêt en années que vous envisagez :

  • ANS
  • %
  • %
  • Prêt :
  • Coût du crédit :
  • Coût de l'assurance :
illustration-accueil

Vous souhaitez vendre une maison, un appartement, un terrain ?

Obtenez une estimation en ligne du prix de votre bien immobilier, c'est gratuit et sans engagement !

Estimer mon bien

Ces biens peuvent aussi vous intéresser

Nos conseils pour votre projet

Vendre son bien immobilier à Morlaix : l’expertise professionnelle, votre atout maître

Vendre son bien immobilier à Morlaix : l’expertise professionnelle, votre atout maître

Syndic de copropriété en Bretagne : rôle, missions et points de vigilance pour les copropriétaires

Syndic de copropriété en Bretagne : rôle, missions et points de vigilance pour les copropriétaires

Étudier à Brest, Lorient ou Morlaix : comment choisir son logement ?

Étudier à Brest, Lorient ou Morlaix : comment choisir son logement ?

Voir tous nos conseils

Vos témoignages

Haut de page

Comparateur de biens (0/3)

COMPARER
Comparateur de biens (0/3)
Tout supprimer